hygge#010
建築地:福島県相馬市(5地域)
SPEC:UA値0.19【W/㎡・K】C値0.1㎠/㎡
認定:認定長期優良住宅(耐震等級3、制震テープ) ZEH



お施主様との出会いは#003相馬市黒木の住まいの完成見学会の頃でありました。
資料ご請求のメールからご丁寧な返信をいただきまして、#003の完成見学会にご参加をいただきました。
相馬市内での土地探し、いくつかの候補地を見てまわりながら、この度の建築地にて日照等のシミュレーションを行い決定に至りました。
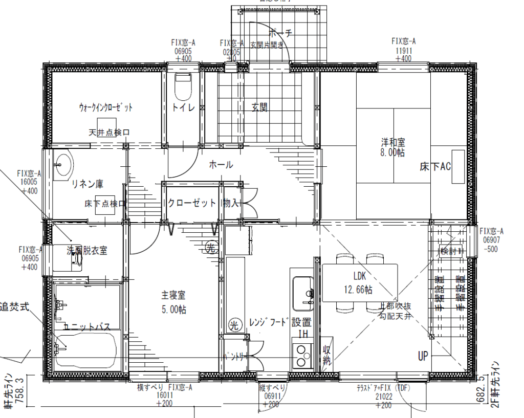
北面が道路に面する土地であり、プランを作成するにあたっては北面駐車場と南面の庭に十分なスペースを確保することを考えながら、生活しやすい動線を考えた間取りの他にも顔となる北面の外観を整えることなど複数のポイントを上手に満たせるようにご提案をさせていただきました。
外観の検討は基本的には凹凸をなるべく減らして、間取りも構造ブロックを崩さないように考えていくことからシンプルになってまいります。
シンプルにすることで建築コストが余計にかからないことや、気密測定値も凹凸の無いデザインの方が良くなる傾向があり、耐震等級3であったとしても複雑な形状よりシンプルな方が長期的に見れば性能低下などにも差が出てくるものと考えております。
そして東西北面の窓は必要な場所に必要な分のみを基本として、南面にある大きな窓の上には庇を設けます。
吹き抜けの窓からも明かりが入り日中は十分な採光を得られております。日射の活用・調節、導光などパッシブデザインの要素です。
東面を平屋として計画した理由は隣地の陽当たりを可能な限り妨げないように考えたためで、こうした配慮によって近隣の方々との良好な関係に繋がればと思っております。
ラスモルタル塗装仕上げの外壁を採用していただき、アイボリーの外壁と桧無垢材の軒天井の組み合わせにより優しい雰囲気となりました。
ラスモルタル壁は継ぎ目、目地が無いためメンテナンスとしてコーキング打ち換えが不要であり(窓まわりはコーキングあり)‘‘塗り壁調‘‘ではなく‘‘塗り壁‘‘であることの美しさを感じます。
窓は全て樹脂サッシトリプルガラス、基本的に‘‘すべり出し窓‘‘や‘‘FIX‘‘を使用しており、‘‘引き違い窓‘‘は庭との関係上で必要など理由が無い限りはご提案することがありません。
窓の断熱性能として引き違い窓の性能値は若干低くなっていることの他に、真ん中の合わせ目の部分がパッキン等で触れているだけの作りであることから横風で音が鳴ってしまうこともあり、それは気密性能にも影響すると考えております。
採光や採風に対し必要な窓の寸法や数を検討しながら、不要な窓を減らし温熱環境の向上やコストカットに繋げております。




吹き抜けのあるダイニング、畳のリビングです。広々とした雰囲気と、籠り感のある空間を合わせました。
内装の窓枠は基本的に下枠のみとしてスッキリとした印象となるようにしておりますが、畳のリビングの窓は4方に枠を設けました。畳のまわりにある縁取りに合わせ、窓にも縁取りをしてデザインの統一感を考えたところです。
また、和室の天井は‘‘板‘‘のイメージがあることとダイニングとの一体感を考え、ダイニングの天井を板張りに、リビングの天井を珪藻土として互い違いに仕上げております。
天井照明が無く、壁から明かりを広げるLDは夜間にとても落ち着きのある優しい雰囲気となります。



キッチン収納を検討するにあたりhyggeでは木製造作も行っておりますが、機能性等々もしっかりと考えなくてはならず、この度はクリナップの製品を採用していただいております。
お客様にご説明させていただくことは「既製品の場合、木目調はまわりの無垢材や自然素材と風合いが違ってしまうためホワイトなど単色か木目調以外が空間に馴染みます。」
ホワイトのキッチン収納を選定していただきましたことからキッチンの背面は珪藻土のグレー、hyggeのイメージカラーでのアクセントを採用していただきました。
コンロ背面のパントリーにある棚板もホワイトアッシュ無垢板として、こうしたところまで統一感を持たせていただきました。
キッチンの側面腰壁はなるべく出入りがしやすいように壁厚を薄く仕上げております。
階段下はスタディスペース、ワークスペースといたしました。
LDKの中にありながらも少し奥まったところ、窓位置も低く道路からも見えないことで落ち着いて使用できるスペースとなります。




リビング階段から2階ホール、子供部屋となっております。
ホールに設置したエアコンは冷房用、吹き抜けの1番高いところに設置することで夏に温度の高い上昇した空気を吸気する意図です。
エアコンをホールに設置することは計画の初期から決定しておりましたのでホールのみ天井高さは約20cmほど高くして圧迫感の無いようにしております。
ホール腰壁の下に設けたスリットは冷房の風をLDKに向かい下降させる意図です。冷房はこちらのエアコン1台でまかなう計画となっております。
hyggeが積極的に吹き抜けを計画しております理由は、断熱・気密性能が高いためにエアコンに対して大きな空間の空気をリターンさせたいとの考えからでありまして、それによりエアコン1台での暖房や冷房がこれまでの実例でも叶っております。
真冬に氷点下となる寒い日などは2階ホールのエアコンも間歇運転(必要な時のみ)していただくこともあります。
なるべく少ないエアコンの台数で、なるべく少ない稼働で、そして快適な室温で各部屋の温度差を少なくすることを目指しております。
リビング階段の部材もホワイトアッシュ無垢材による造作、丁寧に加工していただいていることで手触りがとても良いです。
これまでは無垢集成材のプレカット階段を採用しておりましたところですが、他の造作箇所と樹種やデザインを統一したい考えからこの度より造作といたしました。








ファミリークローク、洗面洗濯室、脱衣室を連続した間取りです。
朝晩ともに移動を少なく身支度が出来るようにしております。
こちら各スペースの収納棚などは必要な分のみ造り付け、カゴやラックを置いていただくなど生活スタイルの変化に対応できるものをご提案させていただきます。
造り付けの部分に置きたいものやその大きさが明確に分かっている場合は丁度の寸法で造作いたしますが、数十年の間、全く同じものを置き続けることも無いと考えるところもあり、お引越し後に暮らしていただく中で足りない部分があれば足していくことをお話させていただくことが多いです。
造作洗面を計画していて改めて良かったと感じたところは、質感やデザインだけではなく、お客様の身長や使い方にあわせて高さなどを調整できるところ。
お客様が暮らす住まいだからこそ、お客様に合わせること、そしてお使いいただくことによる愛着もまた豊かなことと考えております。



トイレのみサーモタイルの床を選定いただきました。
脱衣室や洗濯室も含め水まわりの床に無垢フロアはどうかとのご質問があります。
濡らしたままにしておいては問題が発生してしまいますが、ふき取って乾けば基本的には問題ないことをお伝えさせていただきます。
無垢フローリングも何を塗布して仕上げているか、水濡れ対応しているかは製品によるところもありますので、hyggeではいくつかのオーク無垢フロアをご用意しております。
トイレ床の無垢フロア以外の選択肢はタイルをご提案しておりまして、クッションフロア等のビニル製品は使用しておりません。基礎断熱を採用していることもあり床下も温度差が少なく、床下エアコンを採用することも多くあります。
そのためビニル製品の床から接着剤等も含めお身体に良くない成分の揮発も考えられること、足触りなども考慮してタイルのご提案です。
トイレットペーパーなどを保管していただく収納も室内扉と同様のデザインにて造作しております。
造作室内扉のドアノブを選ぶにあたり、木製玄関ドアのドアノブと似ている製品を選定させていただきました。
アクセントとして違ったデザインと考えることもできましたが、階段をホワイトアッシュ無垢材にしたことや、畳リビングの4方窓枠など調和や統一感に重点を置いてデザインしてきたことからドアノブの選定理由も同様です。
選定に理由があることで仕上がりは同じようで全く違うと感じます。





主寝室や子供室は基本的に活動するための空間ではなく、お休みになる場所として考えております。
hyggeのお客様とお打ち合わせしておりますと、こうした各居室にTVの設置など考えていませんと伺うことが少なくありません。将来的な生活スタイルやお子様の学習環境が変わることも想定してLANケーブル等はご用意させていただきます。
ベッドの大きさや配置を確認させていただき、枕元近くで消灯できるスイッチの位置、ベッドで隠れない位置にコンセントを設けることなどお打ち合わせさせていただきます。
2階の子供室は北に面しておりますが若干大きめの窓を設けて暗くならないように検討しました。
1部屋あたり壁付け照明2灯としてもお休みになる部屋としては十分で、明る過ぎず寛ぎのある空間となります。
他の場所、空間でもご提案させていただくことは、必要がある際はスタンドライトの使用です。
空間全体に対し大きな照明という計画ではなく、その場所:照明器具という考えを基本とすることにより落ち着きのある空間をつくることができております。


TV台や本棚も造作にて設置させていただきました。
‘‘大工さんがつくった‘‘家具はお客様にどのようにお使いになっていただけるのでしょうか。
きっと大切に使っていただけます。
ダイニングセットやカーテンはhyggeの建築にご協力をいただいております福島県 須賀川 郡山 レントウトア・ファニチャー アンド ファブリック | リネンカーテン・オーダー家具・インテリアコーディネート | インテリアデザインスタジオ
須賀川市のrentoutua様からご用意をいただきました。
豊かな暮らしとは、気持ちを豊かにお過ごしいただくことと思います。
‘‘なんでも‘‘良い訳では無いと思うのです。
年間数棟の施工しか行えない私たちだからこそできることを行ってまいります。
断熱等性能等級7以上(UA値0.19W/㎡・K)C値0.1㎠/㎡、長期優良住宅によって耐震等級3の構造、また羊毛断熱材や可変調湿気密シート、こうした性能数値に関することは完成写真からではもう見えなくなってしまっております。
しかし、この性能数値があることが安全安心な暮らしの前提条件です。
快適な住環境があり、豊かなものに囲まれた暮らし。
それがお客様の一生涯に対してどれだけのことであるのか、お問い合わせの段階や面談だけでお伝えするのが1番難しいと感じるところであります。
幸せに暮らしていただくための住まい、設えを考え実行していくのが私たちの仕事。
1つのテイストであることは、1つの理由に向かうためです。
はじめは‘‘更地‘‘だった場所にこのような素敵なお住まいを建築させていただけまして、本当に嬉しく思います。
~この家からはじまる かけがえのない暮らし~
hygge
代表 渡邊 一紘

